Загородный дом Hi182 ind.

Проект загородного дома Hi182 ind — 182 м² с гаражом

Архитектура

Минималистичный дом с гаражом и навесом для автомобилей. В планировке дома нет ничего лишнего все помещения размещены очень компактно но функционально.

О проекте

  • Площадь - 182м2
  • Количество комнат - 5 комнат
  • Этажность - 1 этаж

Минимальное количество коридоров позволило сэкономить полезную площадь и разместить просторную кухню-гостиную, а в жилой зоне три спальни и кабинет.

В отделке фасадов применяется декоративная штукатурка, что довольно удачно сочетается с простыми формами дома, а отсутствие декоративных вставок на подсистеме упрощает этап отделочных работ.

Над проектом работали: - Константин Калина - - Ева Чаплинская - - Антон Гордицкий - Натали Глинская - HiDOM*

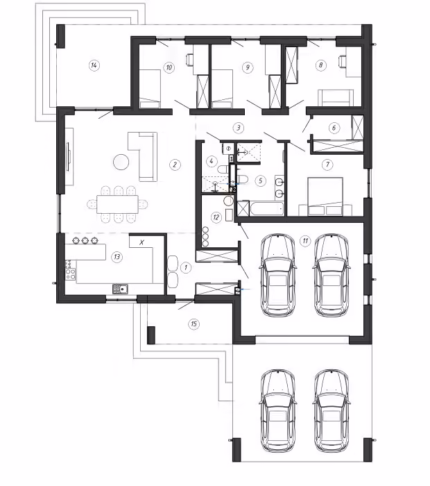
Планировка

1 этаж

1. Прихожая - 9.7м2

2. Гостиная - 40.5м2

3. Коридор - 7.6м2

4. Туалет - 3.9м2

5. Санузел - 9.1м2

6. Гардеробная - 5.0м2

7. Спальня - 13.2м2

8. Кабинет - 12.0м2

9. Спальня - 11.8м2

10. Спальня - 11.8м2

11. Гараж - 36.5м2

12. Кладовая - 4.8м2

13. Кухня - 15.8м2

14. Терраса - 7.1м2

15. Крыльцо - 2.7м2

Итого:- 191.5м2

Консультация
по индивидуальному
проектированию.

Или позвоните нам сами +375296283628

Похожие решения.

Загородный дом Hi176
176m2, 5 комнат, 1 этаж
Загородный дом Hi172
172m2, 5 комнат, 1 этаж
Загородный дом Hi217 ind.
217m2, 5 комнат, 1 этаж
Загородный дом Hi165
165m2, 3 комнаты, 1 этаж