Загородный дом Hi224&SPA.

Загородный дом Hi224&SPA — дом с бассейном и СПА-комплексом

Архитектура

Жилой дом со SPA-комплексом включая бассейн, парную, хамам и спорт зал это тренд набирающий все большую популярность в частном домостроении.

О проекте

  • Площадь - 224м2
  • Количество комнат - 5 комнат
  • Этажность - 2 этажа
  • Бассейн, хамам, баня, спорт зал. Проектирование и строительство HiDom.

За счет скатной кровли над жилым блоком визуально компактный дом вмещает на втором этаже полноценные жилые комнаты с санузлом, балконом и вторым светом над кухней-гостиной.

Hi224 & SPA помимо объединения функций жилого дома и SPA-комплекса сочетает в себе и два экстерьерных стиля: современный с плоской кровлей и брутальный барнхаус с огромным остеклением, переходящим в кровлю над кухней гостиной.

Планировка

1 этаж

1. Гостиная - 38.8м2

2. Хоз. помещение - 11.5м2

3. Постирочная - 5.1м2

4. Лестница - 5.5м2

5. Санузел - 2.9м2

6. Раздевалка - 5.1м2

7. Котельная - 10.4м2

8. Коридор - 12.0м2

9. Хамам - 7.0м2

10. Сауна - 7.1м2

11. Бассейн - 50.5м2

12. Спортзал - 12.8м2

13. Терраса - 8.4м2

Итого:- 177.1м2

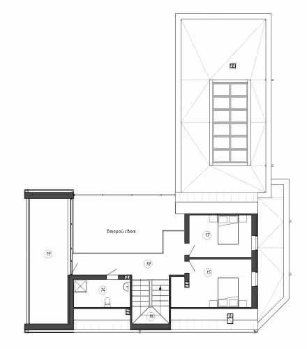
2 этаж

1. Санузел - 7.2м2

2. Спальня - 15.9м2

3. Лестница - 8.3м2

4. Спальня - 10.2м2

5. Коридор - 13.6м2

6. Балкон - 6.6м2

Итого:- 61.8м2

Дизайн-проект

Дизайн-проект DS224 ind.

Консультация
по индивидуальному
проектированию.

Или позвоните нам сами +375296283628

Похожие решения.

Загородный дом Hi203&SPA
203m2, 4 комнаты, 1 этаж
Загородный дом Hi153
153m2, 2 комнаты, 2 этажа
Загородный дом Hi217 ind.
217m2, 5 комнат, 1 этаж