Загородный дом Hi374 ind.

Проект загородного дома Hi374 ind — 374 м² на 7 комнат и 2 этажа

Архитектура

Двухэтажный дом в стиле Райт с навесом на 2 автомобиля и СПА блоком можно считать классикой в мире премиального загородного жилья. Он хорошо смотрится в любом окружении и с различной конфигурацией размещения на участке.

О проекте

  • Площадь - 374м2
  • Количество комнат - 7 комнат
  • Этажность - 2 этажа

Двухэтажный объем переходит в одноэтажную часть блока СПА через навес, под которым организована терраса с выходом из столовой.

Второй свет на два этажа в гостиной с характерным угловым остеклением позволяем максимально раскрыть вид на внутренний двор.

В отделке фасадов использован керамогранит и декоративные реечные панели из ДПК.

Строим прямо сейчас

Конструкция вентилируемых фасадов позволила скрыть все водосточные трубы за отделкой.

В планировке основную площадь занимает кухня-гостиная с открытой парящей лестницей, которая стала акцентом интерьера.

Основные жилые помещения размещены на втором этаже, из них две спальни с гардеробными, кабинет и мастер блок, а так же на первом этаже есть гостевая спальня.

Планировка

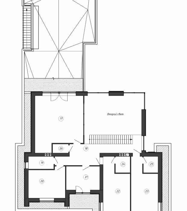
1 этаж

1. Комната отдыха - 17.1м2

2. Тамбур - 3.8м2

3. Тренажерная - 25.8м2

4. Санузел - 1.4м2

5. Раздевалка - 4.5м2

6. Душевая - 5.0м2

7. Хамам - 5.8м2

8. Гостиная - 61.8м2

9. Кладовая - 8.2м2

10. Гардеробная - 11.0м2

11. Гостевая комната - 13.1м2

12. Гараж - 40.2м2

13. Гостевой санузел - 3.7м2

14. Котельная - 5.3м2

15. Кухня - 20.6м2

16. Вестибюль - 16.7м2

Итого:- 244м2

2 этаж

1. Спальня - 36.7м2

2. Коридор - 18.4м2

3. Постирочная - 4.8м2

4. Ванная - 16.1м2

5. Кабинет - 11.9м2

6. Спальня - 20.9м2

7. Спальня - 20.9м2

8. Гардеробная - 3.6м2

9. Гардеробная - 3.6м2

10. Туалет - 2.1м2

Итого:- 139м2

Консультация
по индивидуальному
проектированию.

Или позвоните нам сами +375296283628

Похожие решения.

Загородный дом Hi370
370m2, 7 комнат, 2 этажа
Загородный дом Hi412&SPA
412m2, 6 комнат, 2 этажа