Загородный дом Hi484 ind.

Загородный дом Hi484 IND — дом с панорамным остеклением

Архитектура

В доме реализована концепция поэтажного зонирования, на первом этаже большая кухня гостиная и технические помещения, на втором этаже три спальни, каждая со своим санузлом и гардеробной.

О проекте

  • Площадь - 484м2
  • Количество комнат - 7 комнат
  • Этажность - 3 этажа

Композиция экстерьера сочетает в себе большое остекление с ориентацией на видовые точки прилегающей территории, выделенные разным материалом отдельные объемы здания, выступающие консоли и навесы в различном исполнении, террасы и балконы с перголами и наклонным поверхностями.

Задний двор продуман до мелочей. Тут и технический заезд к рабочей кухне (удобно для доставки продуктов), так и к террасе, на которой семья будет проводить большую часть времени.

Планировка

1 этаж

1. Прихожая - 13.5м2

2. Кухня-гостиная - 90.8м2

3. Кладовая - 13.5м2

4. Крытая терраса - 29.7м2

5. Гардеробная - 20.2м2

6. Санузел - 6.9м2

7. Гардеробная - 13.7м2

8. Котельная - 10.8м2

9. Постирочная - 16.1м2

10. Коридор - 6.6м2

11. Лестница - 16.6м2

12. Холл - 12.2м2

Итого:- 250.6м2

2 этаж

1. Лестница - 16.6м2

2. Коридор - 11.9м2

3. Спальня - 18.8м2

4. Гардеробная - 6.5м2

5. Санузел - 11.3м2

6. Гардеробная - 8.0м2

7. Санузел - 9.5м2

8. Спальня - 20.2м2

9. Гардеробная - 8.8м2

10. Санузел - 9.6м2

11. Спальня - 19.4м2

Итого:- 140.6м2

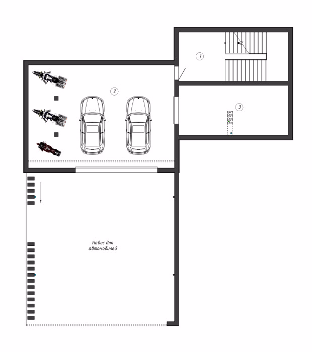
Подвальный этаж

1. Лестница - 28.8м2

2. Гараж - 80.6м2

3. Хоз. помещение - 29.2м2

Итого:- 138.6м2

Дизайн

Дизайн-проект DS484 ind.

Консультация
по индивидуальному
проектированию.

Или позвоните нам сами +375296283628