Загородный дом Hi226 ind.

Загородный дом Hi226 IND — одноэтажный проект с террасой

Архитектура

Одноэтажный дом со вторым светом в кухне-гостиной и огромной крытой террасой! В данном проекте реализованы лучшие приемы проектирования домов такого формата. Навес для автомобилей соединен с хозяйственной постройкой и главным входом в дом.

О проекте

  • Площадь - 226м2
  • Количество комнат - 4 комнаты
  • Этажность - 1 этаж

Объем кухни-гостиной значительно выше остальных помещений и выступает вбок, отделяя тем самым улицу от внутреннего двора и формируя композиционную доминанту дома.

Спальни сгруппированы в отдельный блок и отделены от гостиной, но при этом коридор освещается большим окном с видом на террасу и декоративное дерево. В мастер спальне, как и в гостиной, панорамное остекление с ориентацией на лучшие виды участка.

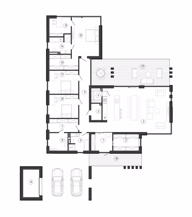
Планировка

1 этаж

1. Прихожая - 8.0м2

2. Гардеробная - 9.7м2

3. Кухня-гостиная - 65.4м2

4. Кладовая - 3.5м2

5. Комната уборочного инвентаря - 3.9м2

6. Санузел - 7.8м2

7. Постирочная - 8.8м2

8. Котельная - 7.5м2

9. Коридор - 20.7м2

10. Спальня - 15.3м2

11. Спальня - 15.3м2

12. Спальня - 23.9м2

13. Гардеробная - 9.7м2

14. Санузел - 8.0м2

15. Хоз. помещение - 10.3м2

16. Кабинет - 8.4м2

17. Крыльцо - 4.5м2

18. Терраса - 14.3м2

Итого:- 245м2

Консультация
по индивидуальному
проектированию.

Или позвоните нам сами +375296283628

Похожие решения.

Загородный дом Hi230
230m2, 5 комнат, 1 этаж
Загородный дом Hi217 ind.
217m2, 5 комнат, 1 этаж
Загородный дом Hi273 ind.
273m2, 5 комнат, 1 этаж
Загородный дом Hi256 ind.
256m2, 4 комнаты, 1 этаж